Infos & Kontakt

Birgit Maier , birgit@maier.at, Tel. 06641432014


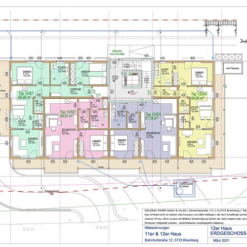
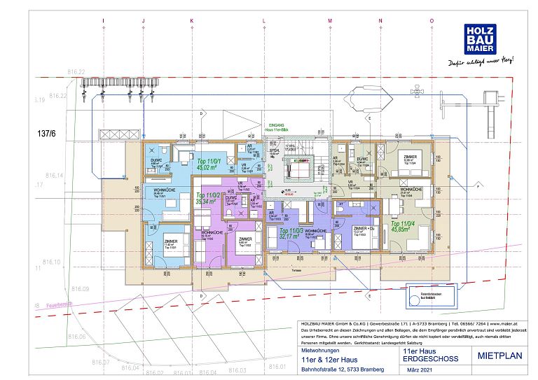
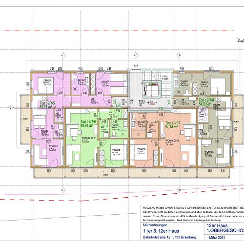
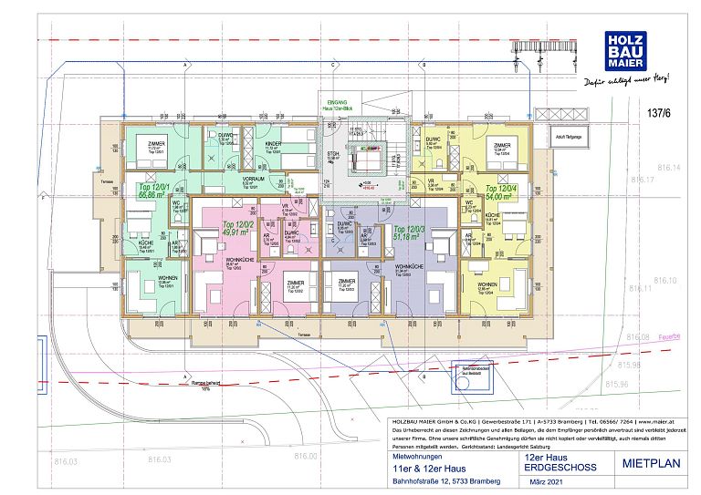
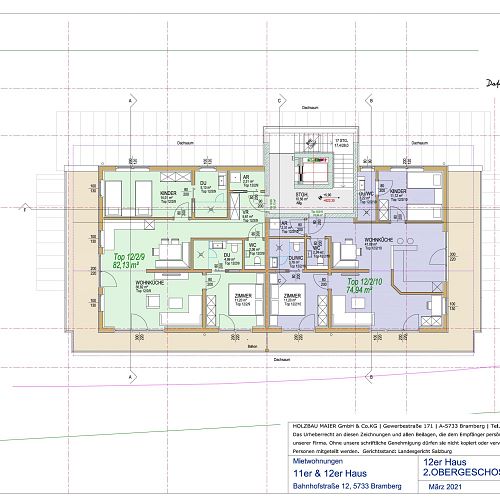
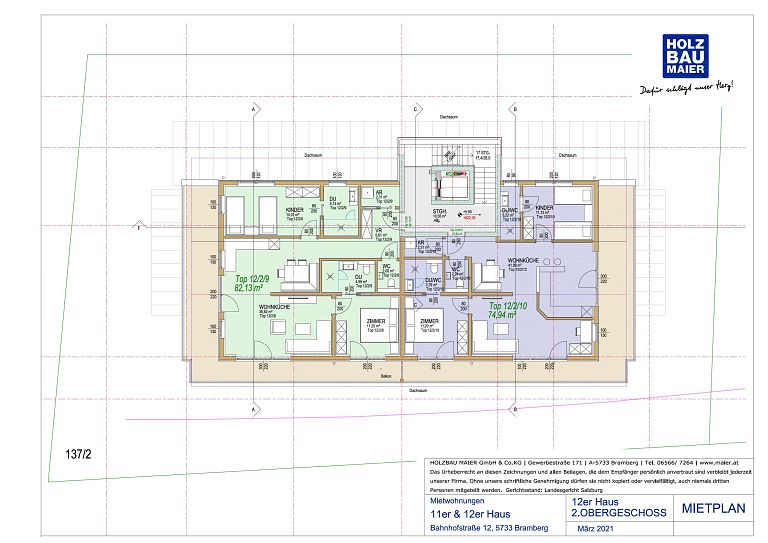
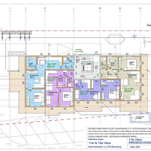
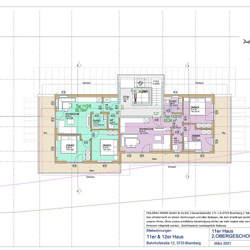
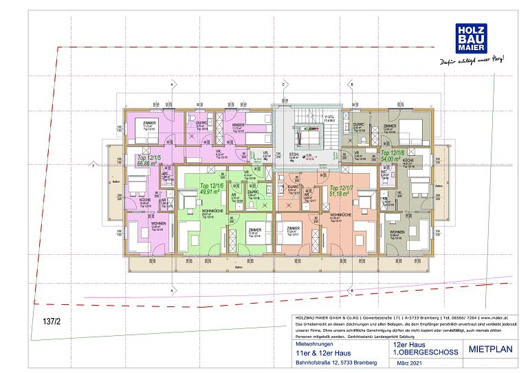
In ruhiger, und doch zentraler Lage, in der Bahnhofstraße in Bramberg, errichten wir 2 Wohngebäude, das 11er und 12er Haus mit jeweils 10 Wohneinheiten.
Die 3 geschoßige Holzbauweise bietet seinen zukünftigen Bewohnern höchsten Wohnkomfort und ein optimales Raumklima.
Im Kellergeschoß sind eine große Tiefgarage und Abstellräume untergebracht.
Die Wohnungen ( zwischen ca. 30 - und 80m2 ) sind mit hochwertigen Eichen-Holzböden, Eichen-Holztüren, Holz-Alu-Fenstern und Massivholzdecken ausgestattet.
In jeder Wohnung ist eine maßgefertigte Einbauküche samt Küchengeräten ( Kühlschrank samt Gefrierfach, Geschirrspüler, Backofen,Cerankochfeld, Dunstabzug, Mikrowellenherd) eingebaut.

Vermietunterlagen-11er-und-12er-Haus-April-2021
18967742